WELCOME TO WILKIE
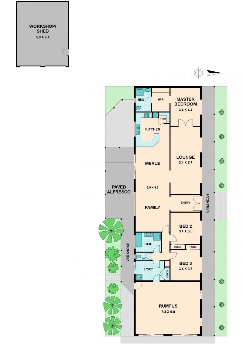
Set in a picturesque rural setting on an acre of parklike grounds and surrounded by prestige homes in a highly desirable locale, this genuine Javor-built ranch-style home offers a complete lifestyle package. Big bedrooms all have robes, and the master bedroom with walk-in robe and spacious ensuite. Generously proportioned, the living areas include a rumpus room, formal lounge and wonderful family/meals that overlooks alfresco and rear yard. The kitchen features electric oven, gas cooking, dishwasher, spacious bench-tops and pantry. Further features include ducted heating and split system air-conditioner. Externally the property offers a large paved undercover alfresco at the rear of the home, established gardens, a secure rear yard plus separate pony yard. A fabulous Colorbond shed makes this property perfect for any tradesperson, family with pets or just for a level low-maintenance lifestyle property. Enjoy a quiet court location within minutes to Kilmore's quality schools, shops and cafes, this is a quality property guaranteed to impress upon inspection.
- 3
- 2
- 2
Email to a Friend
property information
- Street Address 14 WILKIE DRIVE
- Suburb Kilmore
- Postcode 3764
- Price SOLD
- Property Type House for Sale
